长春净月产业园项目
绿地高科城
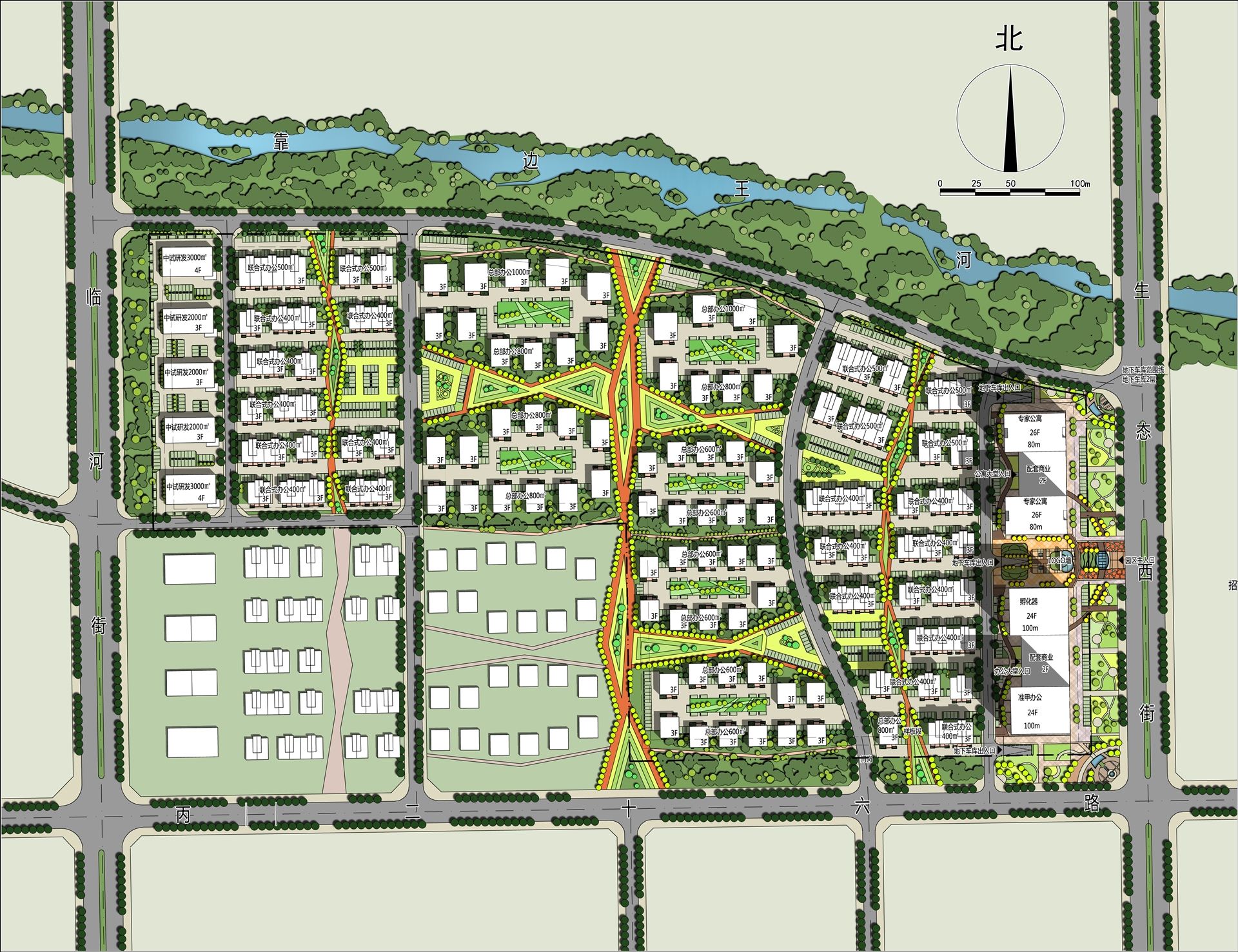
本案位于净月开发区中南部。通过聚焦高新技术的创新孵化、产学研互动、接轨国际的研发转化、现代服务业的创意创新与融合共生、环境优美、配套完备的企业之家四大策略构建国际一流的第四代科技服务综合体。
客户:绿地集团东北事业部
用地面积:17.2公顷
建筑面积:25.7万㎡
位置:长春
项目负责人:郭红旗
项目建筑师:马伟
项目规划师:鲁斌
设计团队:史鹏、黄晓芳
绿地高科城
本案位于净月开发区中南部。通过聚焦高新技术的创新孵化、产学研互动、接轨国际的研发转化、现代服务业的创意创新与融合共生、环境优美、配套完备的企业之家四大策略构建国际一流的第四代科技服务综合体。
客户:绿地集团东北事业部
用地面积:17.2公顷
建筑面积:25.7万㎡
位置:长春
项目负责人:郭红旗
项目建筑师:马伟
项目规划师:鲁斌
设计团队:史鹏、黄晓芳