松江绿地研究院
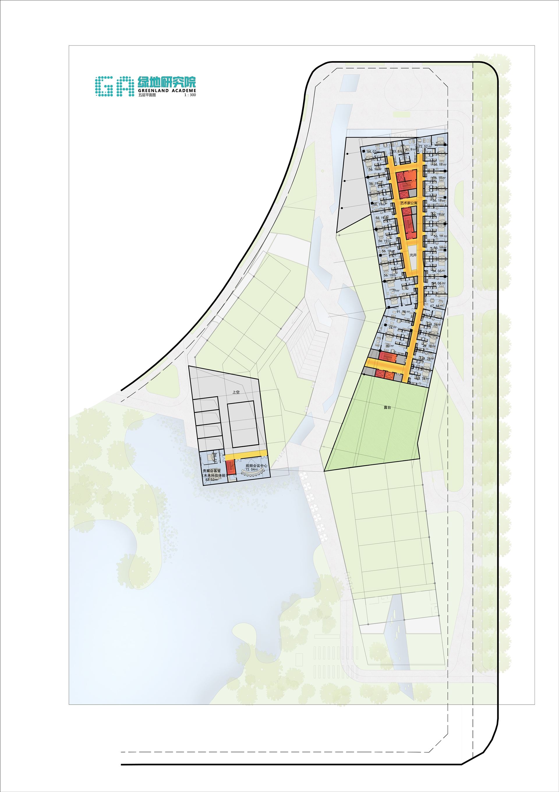
本项目位于上海松江视觉艺术学院东南角的一块用地结合学院的办学理念与绿地的研究院的功能需求,进行功能整合,成为松江绿地研究院总共提出上个方案分别为“大地方案”,“内外方案”,“交融方案”
客户: 绿地集团
用地面积: 15466㎡
建筑面积: 20110㎡
位置: 上海
项目负责人:郭红旗
项目建筑师:申学峰
团队:张仁子,金哲,王彧锦
本项目位于上海松江视觉艺术学院东南角的一块用地结合学院的办学理念与绿地的研究院的功能需求,进行功能整合,成为松江绿地研究院总共提出上个方案分别为“大地方案”,“内外方案”,“交融方案”
客户: 绿地集团
用地面积: 15466㎡
建筑面积: 20110㎡
位置: 上海
项目负责人:郭红旗
项目建筑师:申学峰
团队:张仁子,金哲,王彧锦