南京生物医药综合体概念规划
建立核心公共服务平台,为未来高标准研发环境创造打下基础.
招商接待与洽谈.
展示生态化办公环境.
展示总部园区、孵化楼、中试基地高标准建设成果.
进一步增加总部园区和孵化楼的规模与种类,完善产品类型.
配套建设使用便利的中试基地,加强利用率.
建设生活服务配套设施,完善服务功能.
客户:绿地集团
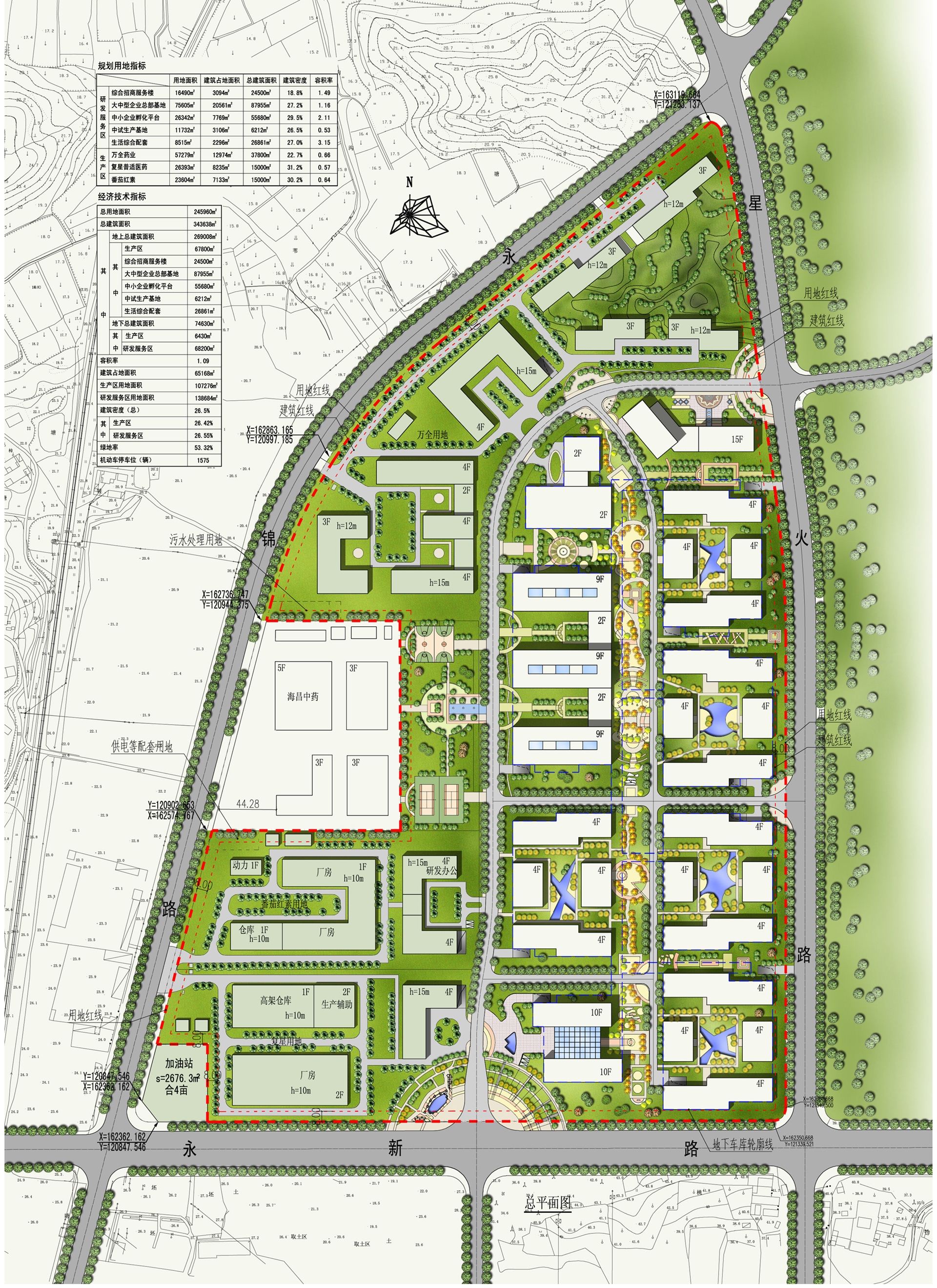
用地面积:245960㎡
建筑面积:314376㎡
位置:南京
项目负责人:郭红旗
项目建筑师:郭亚建
规划团队:于磊
建立核心公共服务平台,为未来高标准研发环境创造打下基础.
招商接待与洽谈.
展示生态化办公环境.
展示总部园区、孵化楼、中试基地高标准建设成果.
进一步增加总部园区和孵化楼的规模与种类,完善产品类型.
配套建设使用便利的中试基地,加强利用率.
建设生活服务配套设施,完善服务功能.
客户:绿地集团
用地面积:245960㎡
建筑面积:314376㎡
位置:南京
项目负责人:郭红旗
项目建筑师:郭亚建
规划团队:于磊