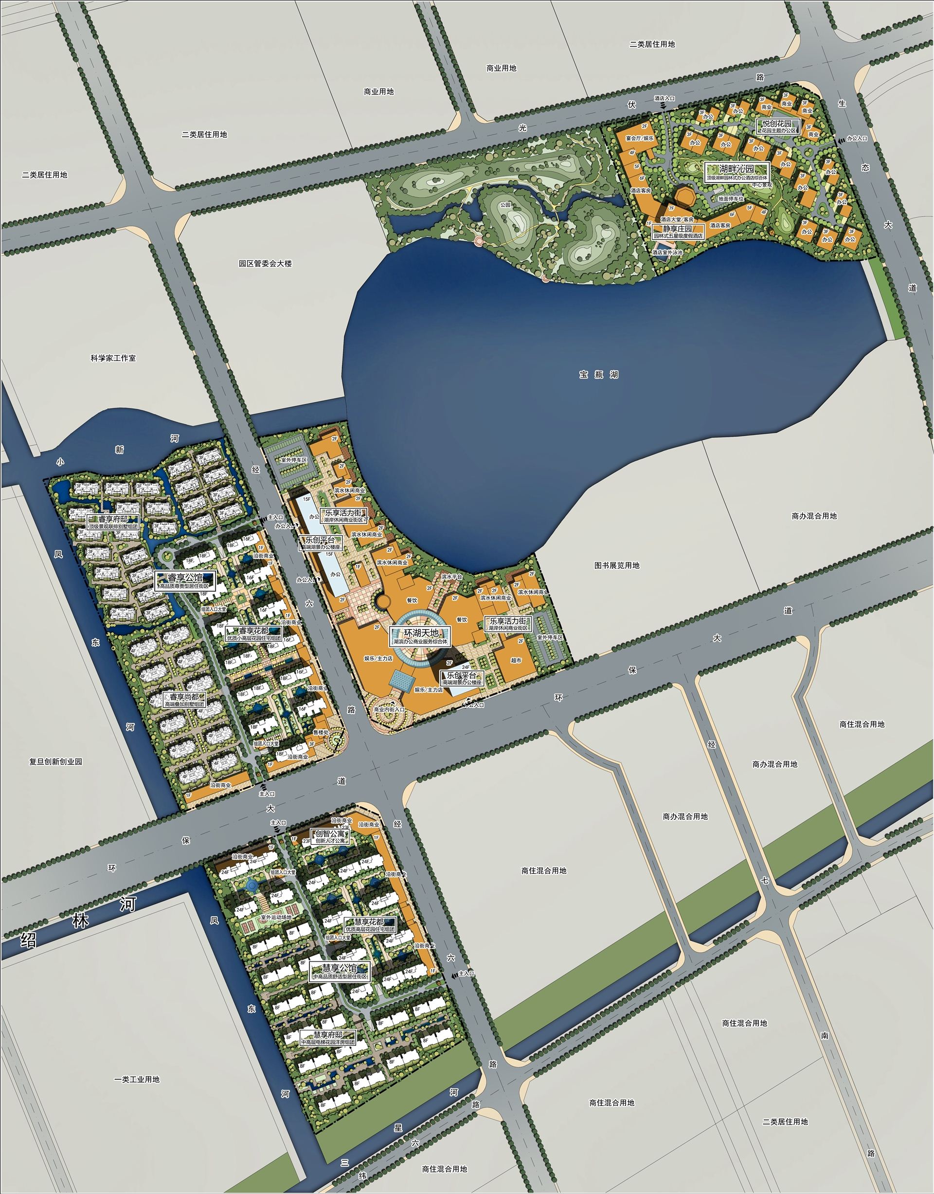
YANCHENG ENVIRONMENTAL PROTECTION INDUSTRIAL PARK
CLIENT: Greenland Group
PLANNING LAND AREA: 30ha
OVERGROUND GFA: 530,000㎡
LOCATION: Yancheng
PROJECT LEADER: Xiaoyu Chen
PROJECT PLANNER: Jie Li
PROJECT ARCHITECT: Yajian Guo
TEAM: Yuanyuan Ye,Donglin Yang
